BIM-Led Hyperscale Data Centre Delivery: Powering Mission-Critical Infrastructure
Transforming Complex Data Centre Projects with Digital Precision
As hyperscale data Centre become the backbone of global digital ecosystems, their delivery demands absolute accuracy, zero tolerance for failure, and future-ready execution.
This hyperscale data Centre project—spanning approximately 500,000 sq. ft.—stands as a benchmark example of how BIM-led delivery, advanced coordination, and digital twin execution can de-risk mission-critical infrastructure.
BIMBOSS Consultants played a pivotal role in stabilizing, coordinating, and digitally enabling the project following scope realignment—ensuring delivery certainty across telecom infrastructure and marine prefabricated electrical rooms.
Project Overview: Hyperscale Digital Infrastructure
Client: Confidential
Asset Type: Hyperscale Data Centre
Built-Up Area: ~500,000 sq. ft.
Core Systems: Telecom Infrastructure, Marine Prefabricated Electrical Rooms
Designed for uninterrupted operations, scalability, and long-term resilience, the facility supports rapidly evolving digital workloads while adhering to stringent reliability standards.
BIM as a Strategic Delivery Platform

Rather than using BIM as a visualization tool alone, it was implemented as a strategic delivery framework—focused on predictability, constructability, and lifecycle value.
BIM Strategy Outcomes:
- Early detection of MEP (Mechanical, Electrical, Plumbing) and telecom clashes
- High-density multidisciplinary coordination
- Seamless integration of off-site prefabrication with on-site execution
- Reduced RFIs, rework, and schedule risk
- Construction confidence through high-LOD coordinated models
This approach ensured that what was built on site precisely matched the approved digital intent.
Re-Establishing Control Through Structured BIM Coordination

Following the reassignment of marine contractor scope, BIMBOSS Consultants re-established coordination governance across mission-critical systems.
Using disciplined clash detection cycles, peer reviews, and spatial validation, the team delivered:
- Clash-free telecom tray routing
- Optimized layouts in constrained technical zones
- Clearly defined installation, access, and maintenance clearances
This proactive coordination significantly reduced downstream construction risk and stabilized execution timelines.
Telecom Infrastructure Designed for Performance and Scalability

As the digital nervous system of the facility, telecom infrastructure was engineered with redundancy, signal integrity, and future expansion in mind.
BIM Scope Delivered:
- Detailed modelling of cable trays and containment systems
- Coordination of telecom rooms, racks, and pathways
- Integration with architectural, structural, and electrical models
Key Design Principles:
- Physical segregation of power and telecom services
- Optimized routing to reduce interference
- Expansion-ready pathways with zero operational disruption
The result was a clean, scalable, and highly resilient telecom framework.
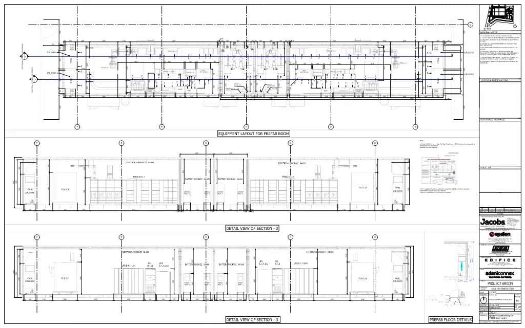
Marine Prefabricated Electrical Rooms: Digital Precision Before Fabrication

Prefabrication played a critical role in improving quality, safety, and installation speed. developed fabrication-ready BIM assemblies for marine prefabricated electrical rooms prior to manufacturing.
Digital Engineering Scope:
- Equipment layout optimization
- Cable entry/exit interface coordination
- Structural and architectural alignment
Value Delivered:
- Reduced on-site installation duration
- Improved safety and quality assurance
- Minimal rework and material wastage
By resolving complexity digitally, prefabricated units arrived ready for first-time-right installation.
Construction-Ready Shop Drawings for Zero-Ambiguity Execution

From coordinated BIM models, BIMBOSS Consultants produced high-accuracy shop drawings to support seamless site execution.
Deliverables Included:
- Telecom cable tray plans, sections, and details
- Electrical room layouts and elevations
- Equipment mounting and clearance drawings
All documentation underwent strict internal QA processes to ensure compliance with design intent, client standards, and constructability requirements.
Digital Collaboration with Autodesk Construction Cloud (ACC)
Image 01: ACC-Based Coordination Environment

Image 02: Revit-Based High-Detail BIM Model View

To enable transparency and speed, the project leveraged Autodesk Revit integrated with Autodesk Construction Cloud (ACC).
ACC Benefits:
- Centralized access to federated BIM models
- Robust version control and approval workflows
- Faster issue tracking and resolution
- Single source of truth across stakeholders
This digital ecosystem significantly enhanced coordination efficiency and decision-making.
Design once. Coordinate fully. Build with confidence.
As-Built BIM & Digital Twin Delivery by BIMBOSS Consultants
To extend BIM value beyond construction, BIMBOSS Consultants delivered verified As-Built BIM models, creating a reliable digital twin of the data Centre.
As-Built Scope:
- Final telecom routing and layouts
- As-installed prefabricated electrical room configurations
- Verified equipment locations and access clearances
- Fully coordinated architectural, structural, and MEP integration
Operational Benefits:
- Accurate O&M-ready digital records
- Faster fault diagnosis and upgrade planning
- Reduced dependence on manual documentation
- Strong foundation for lifecycle asset management

Measurable Value Delivered
Through a BIM-led, lifecycle-focused delivery approach, the project achieved:
- Enhanced constructability across mission-critical systems
- Significant reduction in site clashes and rework
- Faster coordination and approval cycles
- High confidence in prefabrication and installation
- Reliable digital assets supporting long-term operations
Conclusion: Setting a New Benchmark for Data Centre BIM Delivery
Data Centre demonstrates how strategic BIM implementation, disciplined coordination, and As-Built digital twins can transform hyperscale infrastructure delivery.
By aligning closely with performance, scalability, and operational excellence goals, BIMBOSS Consultants successfully converted complexity into coordinated, buildable, and future-ready outcomes.
This project stands as a benchmark for how BIM, VDC, LOD-driven modelling, and digital twins enable faster delivery, reduced risk, and sustained asset value across the entire data Centre lifecycle.
Mission-critical assets demand mission-ready BIM.
Complex data Centre demand zero-failure execution.
Our BIM-driven approach ensures clash-free coordination, faster delivery, and long-term operational value. Connect with BIMBOSS Consultants to future-proof your asset.
FAQ -
Q. How does BIM reduce risk in hyperscale data centre projects?
A. BIM reduces risk in hyperscale data centre projects by enabling early clash detection, high-LOD multidisciplinary coordination, and constructability validation before construction begins. Through coordinated telecom, electrical, and MEP models, BIM minimizes RFIs, prevents rework, supports prefabrication accuracy, and ensures zero-failure execution for mission-critical systems.
Q. Why is BIM essential for telecom and electrical coordination in data centres?
A. BIM is essential for telecom and electrical coordination because data centres demand strict service segregation, redundancy, and spatial precision. BIM enables optimized cable tray routing, interference-free pathways, maintenance clearances, and seamless integration with architectural and structural systems—ensuring scalable, high-performance digital infrastructure.
Q. What is the role of digital twins in data centre operations and lifecycle management?
A. Digital twins provide an accurate As-Built BIM representation of data centre assets, supporting efficient operations, faster fault diagnosis, and future upgrades. By delivering verified telecom routing, equipment layouts, and prefabricated electrical room data, digital twins reduce reliance on manual documentation and create long-term value across the entire data centre lifecycle.
Read More -
Integrating AI and Robotics in Modern Construction Projects: USA, UK & Canada
AI-Powered Construction Monitoring: USA, UK & Canada
Top AI Trends Transforming BIM and Architecture in North America
Build Once, Monitor Forever: The Rise of IFC-Powered Telecom Digital Twins
